portfoolio

Triin Vallner

  • About
    • CV
    • Roo
    • Sõõr
    • Kaldakaar
    • Metsik linn
    • Vrijdag
    • Watchtower Einderheide
    • Fafa’s
    • Arhiabi tegevus
    • Schinkelhaven
    • (uus)Tallinna maja
    • Kullo makett
    • Timber gas station
    • Slotervaart
    • Paide haridusala
    • Orchid island
    • TAB klubi // TAB club
    • Liivalaia tänav
    • Kommunismiohvrite memoriaal
    • Kultuurikatla terrass-lava
    • Urban planning
    • Kortermaja
    • Flooded
    • Kahepuukiri
    • 3DL
    • Tallinna kunstinädala näituse ruum
  • CV

Uitamine Liivalaia tänaval / Wandering Liivalaia

Koos: Keiti Lige, Reelika Reinsalu, Ann Kristiin Entson

Juhendajad: Raul Kalvo, Tõnis Savi

Koht: Liivalaia street, Tallinn

Aeg: kevad 2019

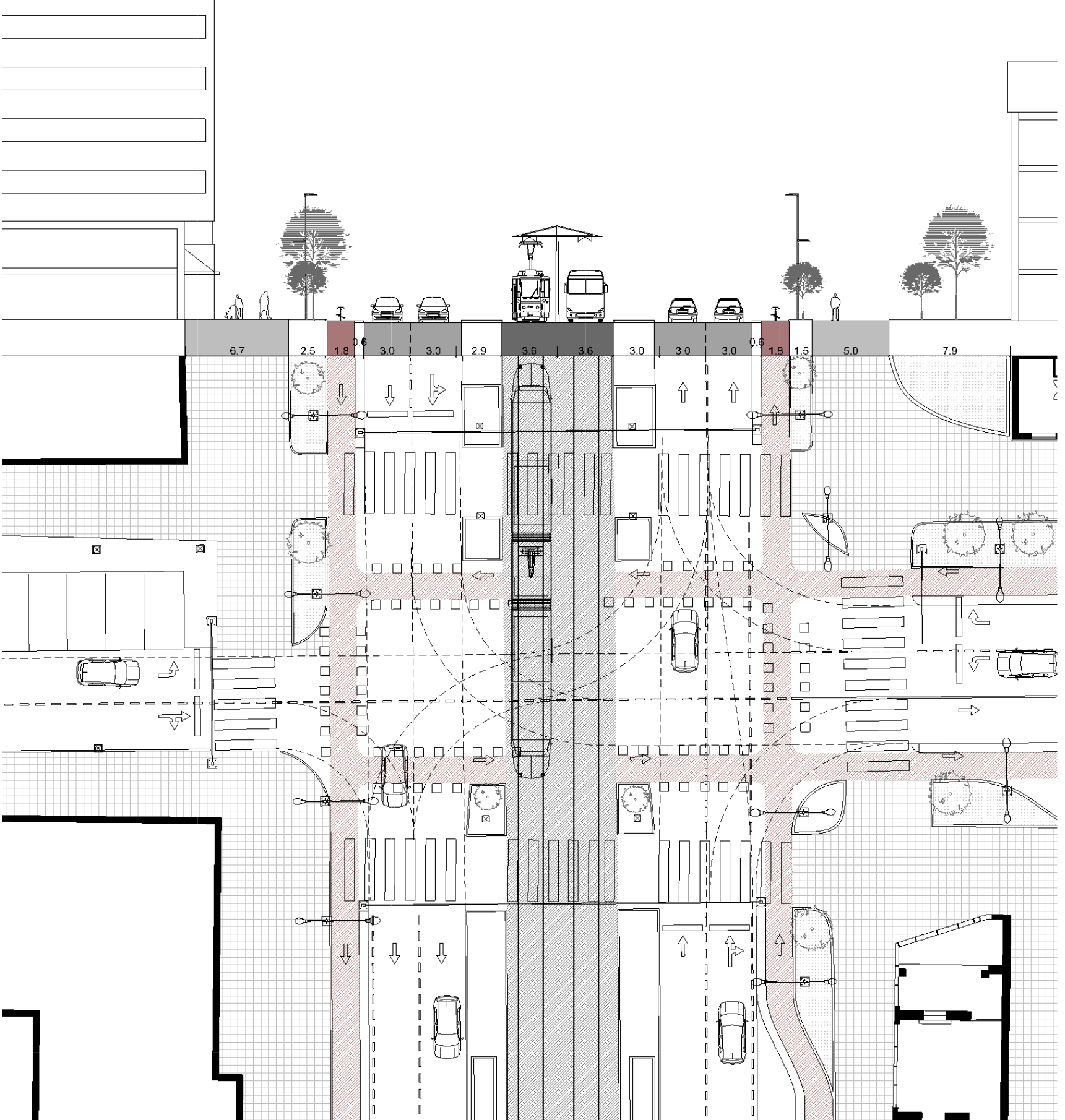
Stuudios antud ülesanne oli uurida praegust ning luua uus plaan Liivalaia tänavale Tallinnas. Samal ajal oli fookus suunatud ruumi loomiseks, kus on piisavalt ruumi kõigile erinevate vajadustega tänaval liiklejatele.

Selle kaudu sai suunaks luua sujuv liiklemine kõigile, peamiselt täiendades teid jalakäijatele ning jalgrattaga sõitjatele, kelle jaoks praegune tänavaruum külalislahke ei ole.

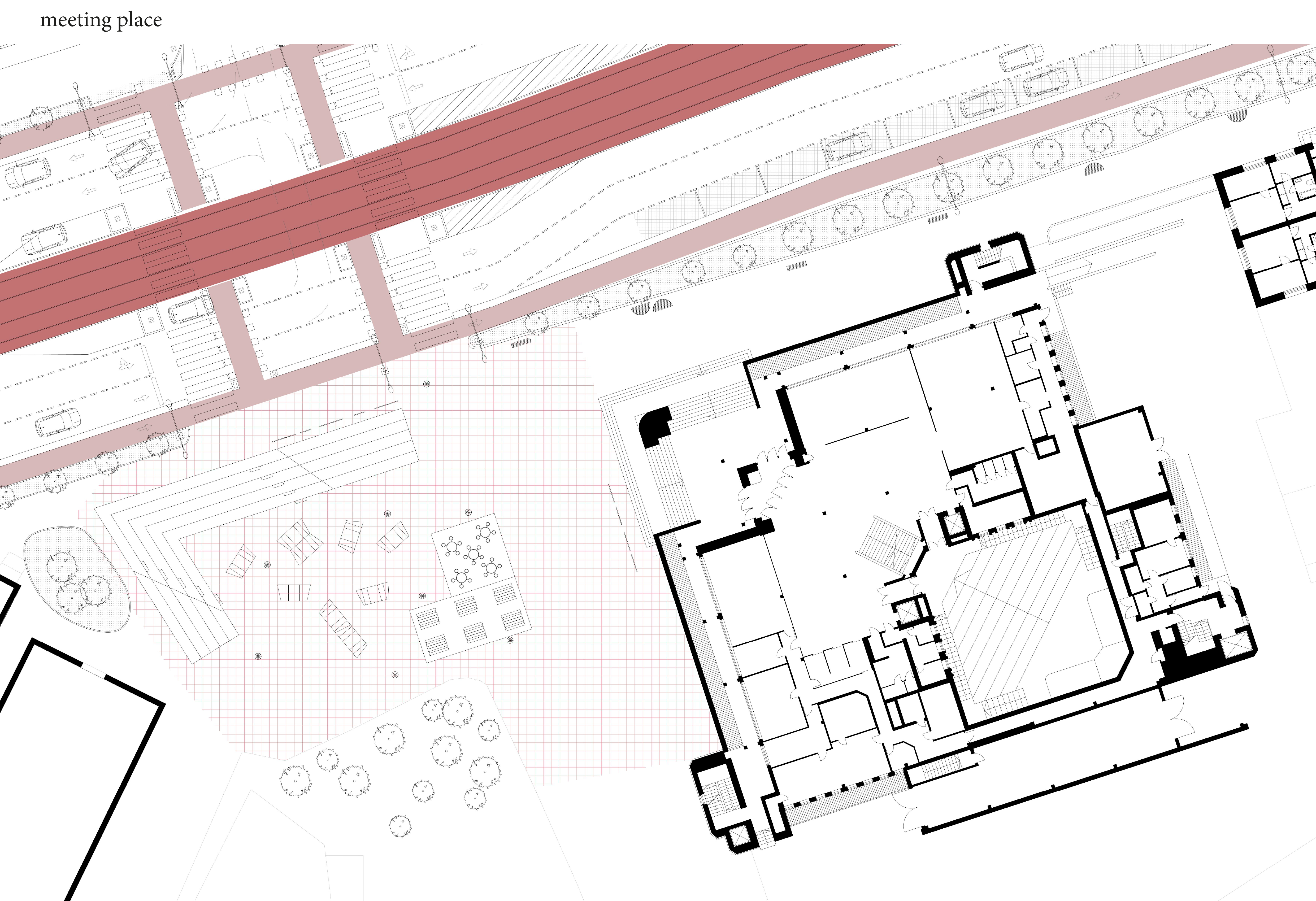
Teiseks tänavadisanil kasutatud liigutuseks oli luua ‘aktiivsed taskud’ erinevatesse osadesse tänaval, pakkudes tasuta tänaval olemiskohti. Nendeks olid näiteks haigla sissepääsuala, kooli ümbrus, tänava lõpud ning park, mis ümbritseb uut büroohoonet.

ENG:

The given task was to research and plan for Liivalaia street in Tallinn. At the same time the focus laid on providing enough space on the street for everyone with different needs for the space. 

Creating a smooth circulation for all and mainly improving the roads for pedestrians and cyclysts, for whom the streetspace currently is quite inhospitable. 

Second move was creating pockets of activities in different parts of the street, offering free spaces of hanging out areas. These were for example the entrance area for a hospital, around school, the ends of the streets and a park area surrounding a new office building. 

portfoolio

Blog at WordPress.com.

  • Subscribe Subscribed
    • portfoolio
    • Already have a WordPress.com account? Log in now.
    • portfoolio
    • Subscribe Subscribed
    • Sign up
    • Log in
    • Copy shortlink
    • Report this content
    • View post in Reader
    • Manage subscriptions
    • Collapse this bar